
ZW消防增压稳压设备产品简介
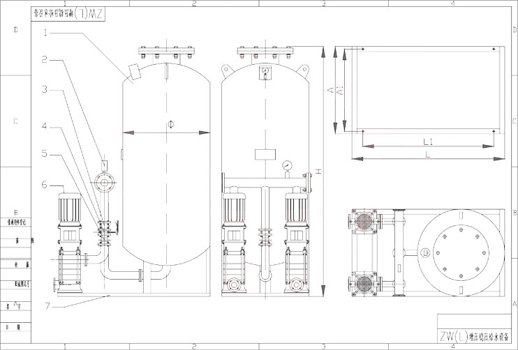
ZW消防增压稳压设备根据1996年8月中华人世共和国建设部[1996]108号文进行开发设计的新型增压稳压设备,同时符合98S205(原98S176)的规定。本增压稳压设备为解决临时高压消防给水系统所设的高位消防水箱,其设置高度满足不了该系统最不利点静水压时应设增压设施的要求,设计编制了为消防专用的增压稳压设备(以下简称“设备”)。本设备适用于多层和高层建造工程有增压设施要求的消火栓给水系统及湿式自动喷水灭火系统等各类消防给水、生活给水系统。本设备由隔膜式气压罐、水泵、电控箱、仪表、管道附件等组成。本设备遵照《讥层民用建筑设计防火规范》(简称《高规》)GB50045-95及《气压给水设计规范》、CECS76:95规定的有关技术参数进行设计。
ZW消防增压稳压设备型号意义
例:ZW(L)- I - X - 10
ZW:增压稳压设备
L:立式气压水罐
I:为上置式,设备在高水箱间;II:为下置式,设备在底层水泵水池间
X:用于消火栓消防给水系统;Z:用于自动喷水灭炎消防给水系统;XZ用于消火栓及自动喷水合用系统
10:充实水柱长度(m)或喷头压力(Mpa)
ZW消防增压稳压设备有关设计技术条件
1、WXQ稳压罐工作压力:0.6MPa、1.0MPa、1.6MPa。
2、WXQ压力罐的消防储水容积大于:150L、300L、450L。
3、WXQ隔膜罐的稳压水容积大于50L。
4、WXQ隔膜压力罐的缓冲水容积压差为0.02~0.03MPa,稳压水容积压差为0.05~0.06MPa。
5、工作压力比:ab值为0.6~40℃.
ZW消防增压稳压设备适用条件
1、消火栓系统:水枪每股流量为2.5L/S、5L/S,充实水柱长度为7m、10m、13m。
2、自动喷水系统:每个喷头流量1.0L/S,喷头压力0.1MPa。
3、设备的环境温度宜为5℃~40℃。
ZW消防增压稳压设备工作原理
1、使消防给水管道系统最不利点始终保持消防所需压力;
2、使WXQ隔膜气压罐内始终储有30秒消防水量.利用气压水罐所设定的P1,P2,Ps1,Ps2运行压力,控制水泵运行工况,达到增压和稳压的功
能.P1为最不利点消防所需压力(MPa),P2为消防泵启动压力(MPa),Ps1为消防稳压泵启动压力(MPa),Ps2为GDL稳压泵停泵压力MPa
ZW消防增压稳压设备运行控制全过程
根据计算求得消火栓系统或自动喷水灭火系统中最不利点所需的消防压力P1,作为气压水罐的充气压力通过计算所选项定的报导压水罐规格及ab值,求得P2,并设定
Ps1=P2+(0.02~0.03)
Ps2=Ps1+(0.05+0.06)
平时管道系统如有渗漏等到*压情况,控制XBD-L消防稳压泵不断补水稳压,在Ps1、Ps2(启动、停止)反覆运行。
一旦有火情,管道系统大量缺水,造成Ps1压力下降(Ps1→Ps2),降至P2时,发出报警信号,立即启动消防泵(手动或自动启动由设计人确定),XBD-L立式单级消防泵启动后,XBD-ISG消防稳压泵自动停止,直至XBD-LG立式多级消防泵停止运转手动恢复“设备”的控制功能。
ZW消防增压稳压设备分类
根据“设备”设置位置分:上置式(用I表示)和下置式(用II表示);
根据气压罐设置方式分:立式(用L表示)和卧式(用W表示);
根据设备所供消防给水系统分:消火栓给水系(用X表示)
自动喷水灭火系统(用Z表示)
消火栓及自动喷水消防给水合用系统(用XZ表示)。
ZW消防增压稳压设备P1的计算
P1指消防给水系统最不利点消火栓或自动喷水头所需的消防压力,是本“设备”运行的最低工作压力,是选用本设备应掌握的基础数据。
1、本“设备”设在底层从水池吸水时,消火栓系统计算公式:
P1=H1+H2+H3+H4(mH2O);
H1—自水池最低水位至最不利点消火栓的几何高度(mH2O);
H2—管道系统的沿程和局部压力损失之和(mH2O);
H3—水龙带及消火栓本身的压力损失(mH2O);
H4—水枪喷身充实水柱长度所需压力(mH2O);
2、“设备”设在高位水箱间从不箱自灌吸水,且最不利点消火栓低于“设备”时,消火栓系统计算公式
P1=H3+H4(mH2O)
3、本“设备”设在底层从水池吸水时,自动喷水灭火系统计算公式:
P1=∑H+Ho+Hr+Z(mH2O)>
∑H—自动喷水管道至最不利点喷头的沿程和局部压力损失之和(mH2O);
HO—最不利点喷头的工作压力(mH2O)>
Hr—报警阀的局部水头损失(mH2O)>
Z—最不利点喷头与水池最低水位(或供水干管)之间的几何高度(mH2O)>
4、本“设备”设在高位水箱间从水箱自灌吸水,且最不利点喷头低于设备时,自动喷水系统计算公式:
P1=∑H+Ho+Hr+Z(mH2O)>5、当气压水罐与水泵分别设置在其它场所时,则P1应另行计算。
ZW消防增压稳压设备几点说明
1、本“设备”的增压标准:P1为本“设备”最低工作压力,其值应满足消防给水系统最不利点所需的消防压力。如消火栓给水系统,必须满足最不利点消火栓水枪喷身充实水柱长度,不能只按满足静水压0.07MPa或0.15MPa为增压标准。
2、计算P1时,该管道系统沿程和局部损失所采用的流量,应为火灾初期消防给水量,如消火栓系统为两股消火栓流量2×5(L/S)=10(L/S)或2×2.5(L/S)=5(L/S);自动喷水灭火系统则为5个喷头流量,一般采用5×1(L/S)=5(L/S)。
3、本“设备“的主要组件:报导压水罐内应有消防给水系统所要求的储存水容积、稳压水容积和缓冲水容积,按确定的ab值求得其直径和规格。用于消火栓给水系统的气压水罐储水容积不小于300L;用于自动喷水灭火系统的气压罐储水容积不小于150L;用于消火栓及自动喷水灭火系统的气压罐储水容积不小于450L。
4、本“设备”配用ISGD稳压泵两台(一用一备)。多级稳压泵流量最应在3分钟内,补足WXQ隔膜气压罐内实际稳压水容积所需流量。稳压泵的
扬程应以(PS1+PS2)/2时,水泵曲线高效区取值。本“设备”的功能是解决火灾初期时,即消防主泵启动前,确保具有足够消防压力的30S储水量进行初期火灾扑球直至消防水泵全负荷。
5、消火栓给水系统及自动喷水灭火系统可以共用一套增压稳压设备。有火情时气压水罐内压力降到P2,向消防控制中心或消防栓泵房根据消火栓系统或自动喷水系统分别发出的其它信号,确认后分别启动消火栓泵或自动喷淋泵。
6、消火栓给水系统中采用本“设备”上置式优于下置式。上置式配用水泵扬程式低,P1公为水龙带、水枪的阻力损失和喷身充实水柱长充所需压力之和,气压水罐充气压力小,承压低,节省钢材及运行费
ZW消防增压稳压设备电控性能
1、本“设备”电控系统具有自动、手动功能,并与消防控制中心或消防泵房联网。
2、两台稳压泵一用一备,轮流工作自动切换,交替运行。
3、平时使消防管网处于高压状态,并保持罐内储存一定水量,由于泄漏等原因,系统压力下降到Ps1时1号泵自动启动,水压上升至Ps2时停泵,下次压力又下次压力又下降到Ps1时,2号泵自动启动,如此交替运行,使系统压力始终保持在Ps1与Ps2之间。
4、一量有火情发生,系统水压从Ps1下降到Ps2时输出启动消防主泵信号和声光报警,当消防主泵启动后反回信号切断稳压泵的控制电源,之后由手动恢复控制功能。
5、电控系统特设维修状态,即运行中如1号泵发生故障,可方便地转入2号泵工作,若2号泵发生故障,也可转为1号泵工作使一台水泵在维修中本“设备“仍能正常运行。
6、电控箱规格尺寸、电器控制原理及主要元件的组成见本公司的电报导自动控制说明了书。
1、表中运行压力符号:
P1----气压水罐的充气压力(消防需要的压力)(MPa)
P2----消防泵启动压力(MPa)
Ps1---增压稳压水泵启动压力(MPa)
Ps2---增压稳压水泵停泵压力(MPa)
2、表中序号1-6为I型"设备",一服务网设在高位水箱间(最不利点消火栓低于"设备")。
3、表中序号7-21为II型,"设备"一般设在消防泵房、储水池间,其消防压力范围,配用水泵等公供选用参考。
4、表中水泵型号为永嘉县海洋水泵厂的水泵型号,根据流量、扬程可改选其他水泵。
ZW消防增压稳压设备结构示意图




